Kylor Greene

(Against) Type

- ROLE

Lighting Designer and Projection Designer


- FOR

UMKC Theatre Department


- DATE

April 2018


- TYPE

Lighting Design, Projection Design


- DIRECTOR

Darren Sextro


A collection of monologues and scenes performed in UMKC’s Blackbox space.

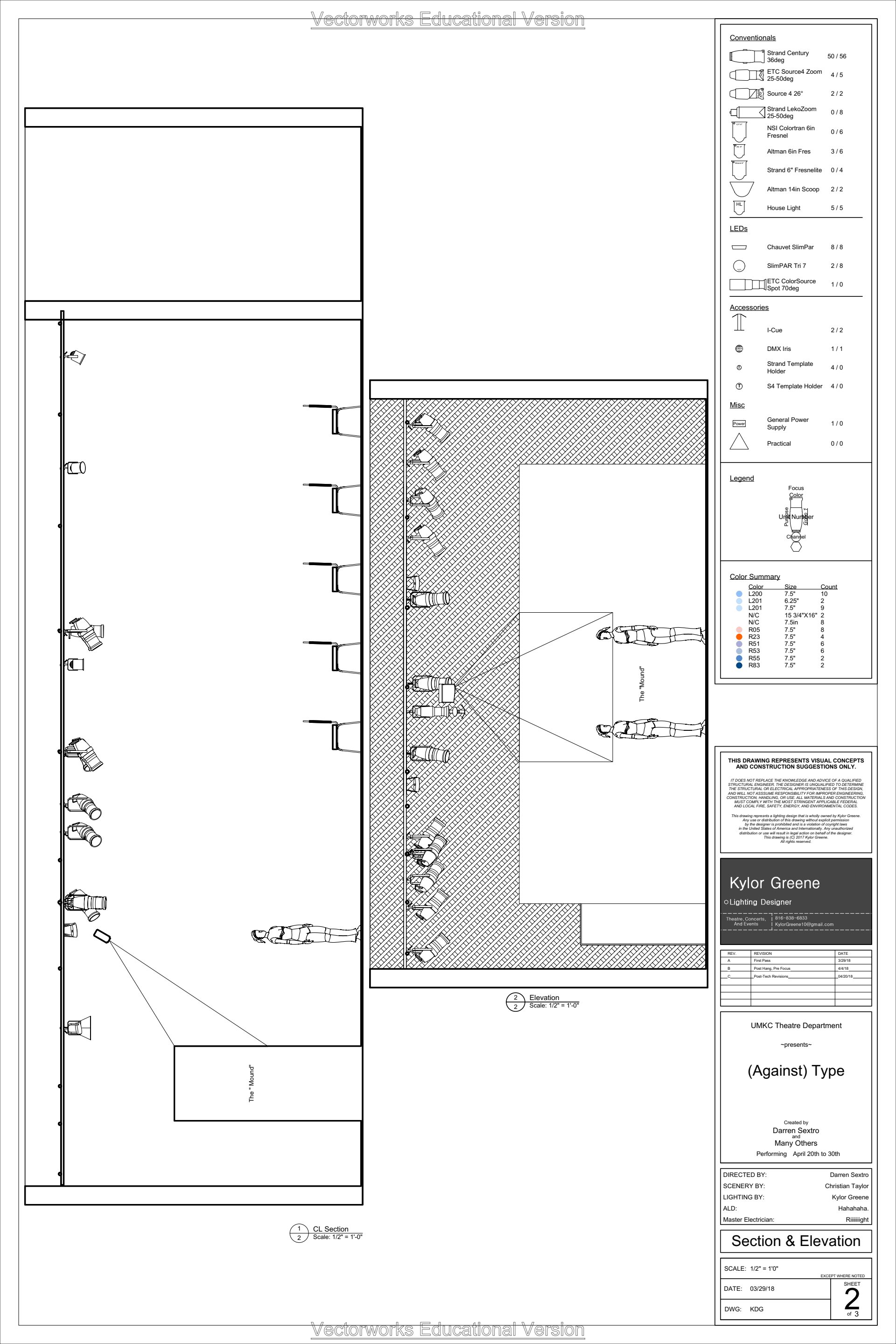
Light Plot created in Vectorworks 2018